Oldham Street, Warrington, WA4

For Sale £170,000 Freehold

2 1 2
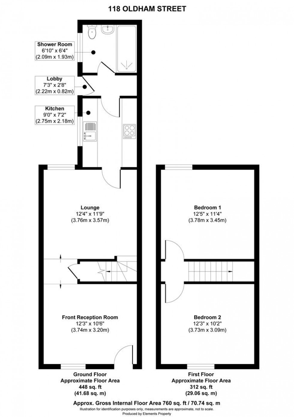
Nestled on the charming Oldham Street in Warrington, this delightful end terrace house offers a perfect blend of character and modern living. Built in 1909, the property boasts a rich history while providing a comfortable and inviting atmosphere for its residents. Spanning an area of 753 square feet, this home features two well-proportioned reception rooms, ideal for both relaxation and entertaining guests.

The two bedrooms are thoughtfully designed to provide a peaceful retreat, making them perfect for restful nights. The bathroom is conveniently located, ensuring ease of access for all occupants. The layout of the house is practical, allowing for a seamless flow between the living spaces, which enhances the overall sense of home.

Situated in a vibrant area of Warrington, this property is close to local amenities, schools, and parks, making it an excellent choice for families and professionals alike. With its charming exterior and inviting interior, this end terrace house is a wonderful opportunity for those seeking a home with character in a desirable location. Whether you are looking to buy or rent, this property is sure to impress with its unique charm and potential.

Front of House

Back Garden

Bathroom

Kitchen

Reception room 1

Reception room 2

Stairs

Bedroom 1

Bedroom 2

Floorplan for Oldham Street, Warrington
EPC Graph for Oldham Street, Warrington

Similar Properties

SOLDSTC Suez Street, Warrington

Suez Street, Warrington, WA1

Sold Subject to Contract £80,000

Hagley Road, Birmingham, B16 8HT

Hagley Road, Birmingham, B16 8HT, B16

For Sale £85,000

SOLDSTC Hardshaw Street, St. Helens

Hardshaw Street, St. Helens, WA10

Sold Subject to Contract £100,000

SOLDSTC Slater Street, Warrington

Slater Street, Warrington, WA4

Sold Subject to Contract £135,000

Get an instant online valuation

Find out how much your property is worth