South Coast Road, Peacehaven, BN10

For Sale £299,950 Freehold

3 1 2
To Be Sold via Secure Sale online bidding. Terms & Conditions apply. Starting Bid £299,950

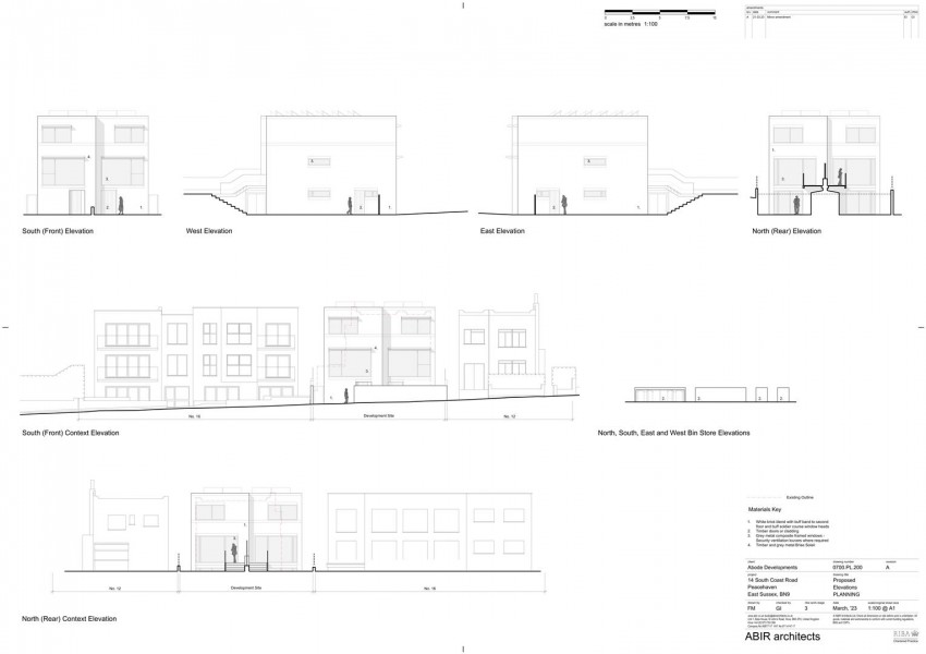
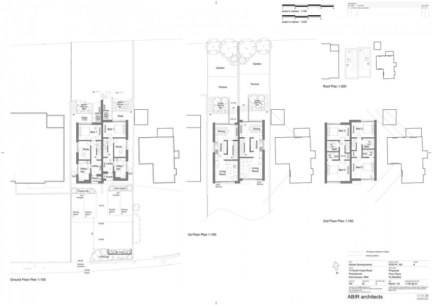
We are proud to be able to present to the market this exciting Development Opportunity with FULL Planning permission granted for TWO, THREE bedroom, THREE storey houses, granted under planning number LW/23/0181 with Lewes District Council.

When looking at a development opportunity, location is key and you will not be disappointed with this site. Situated on the main South Coast Road in Peacehaven, once built these stunning houses will not only be close to transport links into Brighton and Eastbourne, but will also have wonderful sea views too.

The existing property is currently arranged as follows: Ground floor accommodation to include a living room, dining room, wc, kitchen. The first floor comprises of three bedrooms and a bathroom. There are also front and rear gardens alongside a garage.

Offered with vacant possession, this is a fantastic opportunity for any developer to build and add to their portfolio or to build and sell on.

Entrance Hallway

Kitchen (3.64 x 2.50)

Dining Room (2.51 x 4.77)

WC (2.31 x 1.20)

Living Room (3.65 x 3.82)

Stairs To First Floor

Bedroom One (3.64 x 3.83)

Bedroom Two (2.77 x 2.48)

Bedroom Three (2.49 x 2.50)

Bathroom (2.51 x 1.98)

Garage

Gardens

Auctioneers Additional Comments
Pattinson Auction are working in Partnership with the marketing agent on this online auction sale and are referred to below as 'The Auctioneer'.

This auction lot is being sold either under conditional (Modern) or unconditional (Traditional) auction terms and overseen by the auctioneer in partnership with the marketing agent.

The property is available to be viewed strictly by appointment only via the Marketing Agent or The Auctioneer. Bids can be made via the Marketing Agents or via The Auctioneers website.

Please be aware that any enquiry, bid or viewing of the subject property will require your details being shared between both any marketing agent and The Auctioneer in order that all matters can be dealt with effectively.

The property is being sold via a transparent online auction.
In order to submit a bid upon any property being marketed by The Auctioneer, all bidders/buyers will be required to adhere to a verification of identity process in accordance with Anti Money Laundering procedures. Bids can be submitted at any time and from anywhere.
Our verification process is in place to ensure that AML procedure are carried out in accordance with the law.

The advertised price is commonly referred to as a ‘Starting Bid’ or ‘Guide Price’ and is accompanied by a ‘Reserve Price’. The ‘Reserve Price’ is confidential to the seller and the auctioneer and will typically be within a range above or below 10% of the ‘Guide Price’ / ‘Starting Bid’.
These prices are subject to change.



An auction can be closed at any time with the auctioneer permitting for the property (the lot) to be sold prior to the end of the auction.

A Legal Pack associated with this particular property is available to view upon request and contains details relevant to the legal documentation enabling all interested parties to make an informed decision prior to bidding. The Legal Pack will also outline the buyers’ obligations and sellers’ commitments. It is strongly advised that you seek the counsel of a solicitor prior to proceeding with any property and/or Land Title purchase.

Auctioneers Additional Comments
In order to secure the property and ensure commitment from the seller, upon exchange of contracts the successful bidder will be expected to pay a non-refundable deposit equivalent to 5% of the purchase price of the property. The deposit will be a contribution to the purchase price. A non-refundable reservation fee of up to 6% inc VAT (subject to a minimum of 6,000 inc VAT) is also required to be paid upon agreement of sale. The Reservation Fee is in addition to the agreed purchase price and consideration should be made by the purchaser in relation to any Stamp Duty Land Tax liability associated with overall purchase costs.

Both the Marketing Agent and The Auctioneer may believe necessary or beneficial to the customer to pass their details to third party service suppliers, from which a referral fee may be obtained. There is no requirement or indeed obligation to use these recommended suppliers or services.

  • Sold via Secure Sale online bidding. Terms & Conditions apply
  • Exciting Development Project
  • Planning Permission Granted
  • For Two Three Storey Houses
  • Planning Number LW/23/0181
  • Currently Three Bedroom House with Garage
  • Prime Location
  • Sea Views
Floorplan for South Coast Road, Peacehaven
EPC Graph for South Coast Road, Peacehaven

Similar Properties

SOLDSTC Suez Street, Warrington

Suez Street, Warrington, WA1

Sold Subject to Contract £80,000

Hagley Road, Birmingham, B16 8HT

Hagley Road, Birmingham, B16 8HT, B16

For Sale £90,000

SOLDSTC Hardshaw Street, St. Helens

Hardshaw Street, St. Helens, WA10

Sold Subject to Contract £100,000

SOLDSTC Slater Street, Warrington

Slater Street, Warrington, WA4

Sold Subject to Contract £135,000

Get an instant online valuation

Find out how much your property is worth