Northcote Road,Downend,Downend, BS16

For Sale £535,000 Freehold

4 2 2
++No Onward Chain++
We are delighted to present this four bedroom semi detached property in Downend, Bristol.
The property has a full equipped kitchen/dining room, lounge, four bedrooms and a family bathroom.
There is a garage and off street parking. Also a private rear garden.
The property has had some recent renovations carried out which include a new roof and gas boiler.
This is in a great location with easy access to the nearby motorway networks and routes into Bristol and Bath.

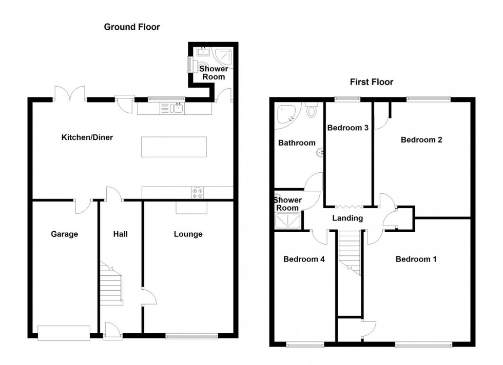
Lounge (3.64 (3.63) x 4.91 (4.90))

Feature fireplace. uPVC double glazed windows. Radiator. Wood flooring.

Kitchen Diner (8.12 (8.13) x 3.92 (3.91))

Fully equipped modern kitchen. Wall and floor mounted storage units and a central island. Electric hob and oven. Integrated microwave. American style fridge/freezer. Dishwasher. Stainless steel diffuser hood. Composite kitchen sink and drainer. Tile splash backs. Wood work tops. uPVC double glazed windows. uPVC double glazed french doors to rear garden. Wood flooring. Two radiators. Internal door to garage.

Shower Room (1.63 x 1.54 (1.55))

Low level WC. Shower cubicle. Basin. Radiator. Frosted uPVC double glazed windows.

Hall (1.68 x 5.53 (5.54))

uPVC double glazed front door. Radiator. Coat hooks. Stairs.

Bedroom 1 (4.44 (4.45) x 4.32)

To the front of the property. Fitted wardrobes. uPVC double glazed windows. Storage cupboard. Radiator.

Bedroom 2 (3.86 x 4.09)

To the rear of the property. uPVC double glazed windows. Storage cupboard. Radiator.

Bedroom 3 (3.11 (3.10) x 1.85)

To the rear of the property. uPVC double glazed windows. Radiator.

Bedroom 4 (4.89 (4.90) x 3.55 (3.56))

To the front of the property. uPVC double glazed windows. Radiator. Fitted wardrobes.

Bathroom (1.99 x 2.02)

Family bathroom with corner bath. Mixer tap and wand attachment. Extractor fan. Low level WC. Basin on vanity unit. Tiled walls and floor. Frosted uPVC windows. Ladder style radiator.

Shower room (1.58 x 1.14)

Walk in shower. Basin. Ladder style radiator. Extractor fan.

Garage (5.04 (5.03) x 2.41)

Up and over door. Power supply to the garage.

Rear Garden

Comprising of a lawn, patio and deck area. There are also raised beds and mature fruit trees.

  • No Onward Chain
  • Double Glazing
  • Gas Central Heating
  • Off Road Parking
  • Modern Kitchen
  • Garden
  • Garage
  • New Roof with 10 Year Guarentee
  • Recent Boiler
Floorplan for Northcote Road,Downend,Downend
EPC Graph for Northcote Road,Downend,Downend

Similar Properties

SOLDSTC Suez Street, Warrington

Suez Street, Warrington, WA1

Sold Subject to Contract £80,000

Hagley Road, Birmingham, B16 8HT

Hagley Road, Birmingham, B16 8HT, B16

For Sale £90,000

SOLDSTC Hardshaw Street, St. Helens

Hardshaw Street, St. Helens, WA10

Sold Subject to Contract £100,000

SOLDSTC Chapel Street, St. Helens

Chapel Street, St. Helens, WA10

Sold Subject to Contract £110,000

Get an instant online valuation

Find out how much your property is worth