London Road, Westcliff-On-Sea, SS0

For Sale £380,000 Leasehold

5 1 1
For Sale – £380,000
327A London Road, Southend-on-Sea, SS0 7BX

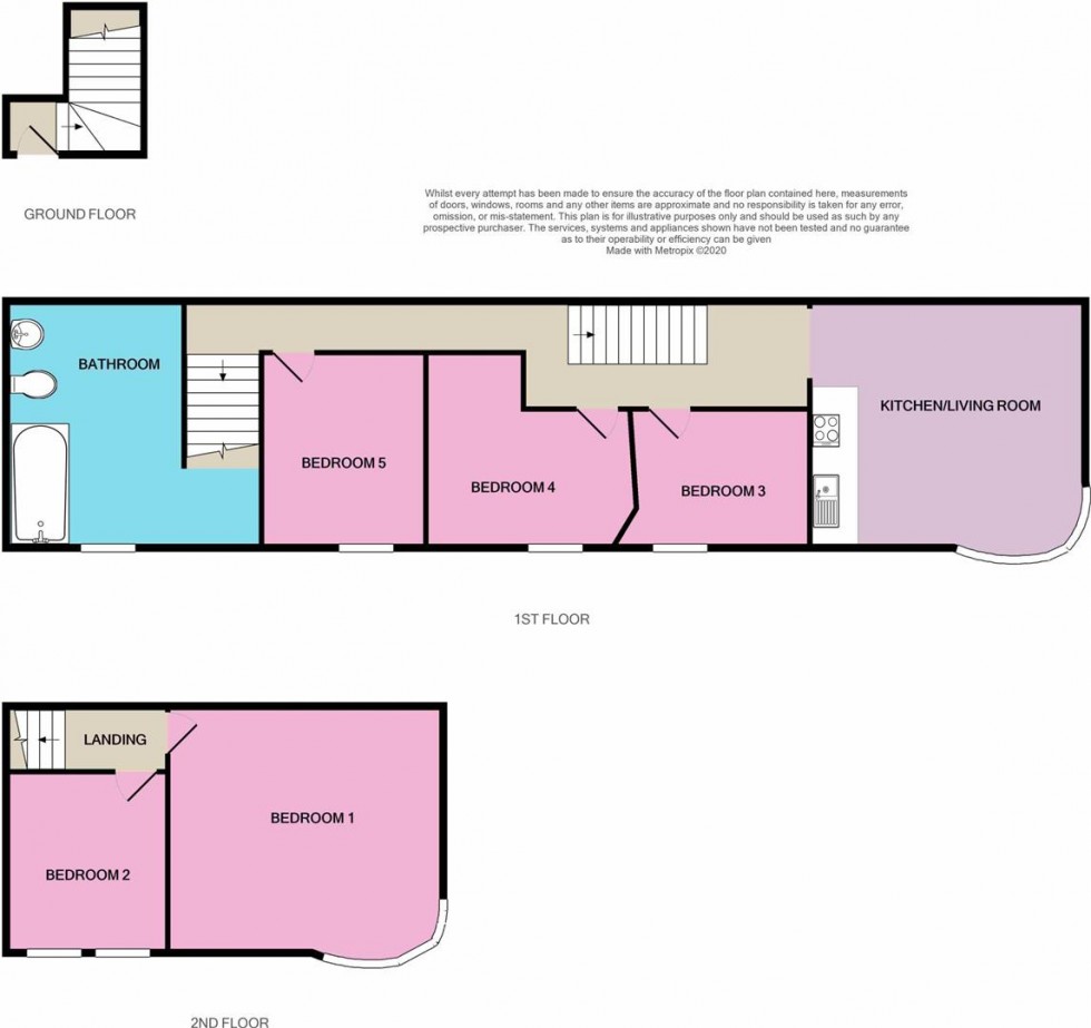
An exceptionally spacious 5-bedroom maisonette situated on London Road, Southend-on-Sea. Offering excellent investment potential, this property can achieve a rental income of £2,000 – £2,500 PCM, delivering a strong return for buy-to-let investors.

The accommodation comprises:

Five generously sized bedrooms

Large living room

Fitted kitchen

Family bathroom

Although the property does not benefit from a garden or parking, its size and layout make it highly appealing for both families and investors.

Key Information:

Leasehold – 95 years remaining

Ground Rent: £0

Service Charge: £0

EPC Rating: G

Council Tax Band: B

Asking Price: £380,000

This is a rare opportunity to acquire a high-yielding, low-cost leasehold property in a sought-after location with excellent rental demand.
Floorplan for London Road, Westcliff-On-Sea Floorplan for London Road, Westcliff-On-Sea

Similar Properties

SOLDSTC Suez Street, Warrington

Suez Street, Warrington, WA1

Sold Subject to Contract £80,000

Hagley Road, Birmingham, B16 8HT

Hagley Road, Birmingham, B16 8HT, B16

For Sale £90,000

Woodville Grove, Welling

Woodville Grove, Welling, DA16

For Sale £95,000

Shaw Street, St. Helens

Shaw Street, St. Helens, WA10

For Sale £100,000

Get an instant online valuation

Find out how much your property is worth