Doveridge Road, Burton-On-Trent, DE15

Sold Subject to Contract £325,000 Freehold

4 3 1
Welcome to this well-presented four bedroom detached family home, set on popular development on the desirable Brizlincote Valley. The property is in good condition throughout, and notable are the stunning countryside views, and the property’s positioning on a cul-de-sac with no thoroughfare.

The Brizlincote Valley is a sought-after area, near to the town centres of Burton on Trent and Swadlincote, but separated as a village in itself. Locally there is a Tesco convenience store, and desirable primary and secondary schools set on the estate, as well great transport links for commuters via the A511, A38, A50 and M1 and M42.

Brief Decription:

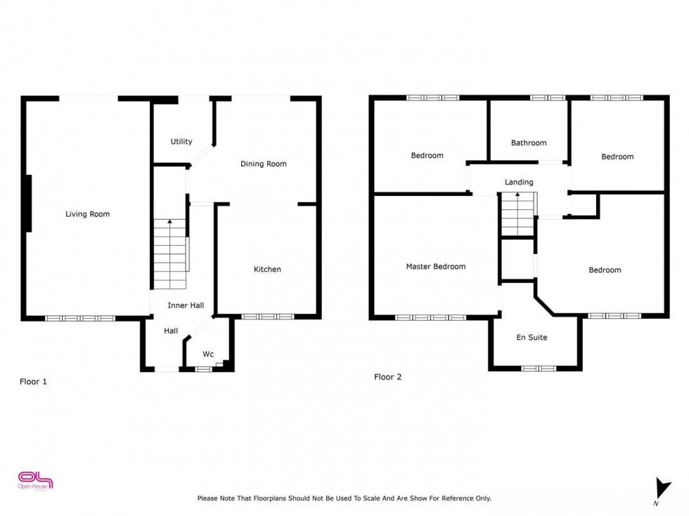
The property benefits from having a large kitchen diner, the perfect hub for the modern home, a reception room in itself, but also complemented by an especially spacious living room with French doors leading out onto the rear terrace and views onto open countryside. Separate to the kitchen is a utility room housing a recently fitted combi boiler, and the first floor is completed by the cloakroom WC.

Up to the first floor is a master bedroom with en-suite shower room, as well as a further three well-sized bedrooms, and the family bathroom.

The outside of the property offers two separate parking areas out front and to the rear a stunning split-level garden with a terrace, patio, decking, as well as lawned garden area.

Property in Detail:

GROUND FLOOR
The ground floor offers a welcoming entrance hallway having a WC and doors leading off to:

Spacious 20ft Living Room having a feature electric fire with French doors leading out onto the terrace. The Living Room is bigger than the typical four beds on the estate.

Open-Plan Kitchen Diner, benefiting from a selection of matching wall and base units, drawers, and high-quality work-surfaces. French doors lead out onto the terrace having a beautiful view over rolling countryside and access to the:

Separate Utility having a back door leading out onto the rear terrace.

Up to the first floor you are met by a landing with doors giving way to the:

Master Bedroom with large window to the front elevation for natural light, ample space for all required furniture and access to the En-Suite.

The En-Suite is fitted with a corner walk-in power shower with glass sliding screen, a WC and a wash basin with mixer tap. The En-Suite is large for a property of this type.

Three further bedrooms, two comfortable doubles and a particularly well-sized single which would fit a double bed if required. Bedroom two faces out to the front aspect, and bedrooms three and four to the rear.

The Family Bathroom finishes the interior accommodation and is well appointed with a bath and mixer shower over, and a hotel style integrated WC and hand wash basin with in-built storage.

The property also boasts a detached garage, with rolling door to the front, and pedestrian door to the rear.

The outside of the property to the front elevation offers a tarmacadam driveway having parking for two cars as well as separate parking area to add the convenience of not blocking in. To the rear there is a stunning split-level garden having a terraced patio area with the lower tier having a decked, patio and lawned garden area. Highlightable is that the garden is not overlooked from the rear.

Measurements:
LIVING ROOM 20' 0" x 10' 1" (6.10m x 3.07m)
KITCHEN 10' 0" x 9' 0" (3.05m x 2.74m)
DINING ROOM 9' 0" x 9' 0" (2.74m x 2.74m)
MASTER BEDROOM 11' 0" x 10' 10" (3.35m x 3.30m)
BEDROOM TWO 11' 0" x 12' 0" (3.35m x 3.66m)
BEDROOM THREE 8' 0" x 9' 0" (2.44m x 2.74m)
BEDROOM FOUR 8' 0" x 9' 0" (2.44m x 2.74m

Additional Information
Additional Information:
Tenure: Freehold
EPC Rating: D
Council Tax Band: D
Local Authority Area: East Staffordshire

Services: Mains water, drainage, electricity and gas are believed to be connected to the property but purchasers are advised to satisfy themselves as to their suitability.

We wish to clarify that these particulars should not be relied upon as a statement or representation of fact and do not constitute any part of an offer or contract. Buyers should satisfy themselves through inspection or other means regarding the correctness of the statements contained herein.

Please also be aware that we have not verified the condition of the appliances or the central heating system included in the sale, and buyers are advised to conduct their own assessments before entering into a contract.

**Money Laundering Regulations 2003:**
In accordance with the Money Laundering Regulations 2003, we are obligated to verify your identification before accepting any offers.

  • FOUR BEDROOM DETACHED HOUSE
  • STUNNING VIEWS OVER OPEN COUNTRYSIDE
  • 20ft LIVING ROOM
  • OPEN PLAN KITCHEN/DINER
  • MASTER BEDROOM WITH EN-SUITE
  • SEPARATE UTILITY ROOM AND CLOAKROOM WC
  • DOUBLE DRIVEWAY
  • GARAGE WITH REAR PEDESTRIAN ACCESS
  • PRIVATE REAR GARDEN (NOT OVERLOOKED)
  • New Combi Boiler in 2023
Floorplan for Doveridge Road, Burton-On-Trent
EPC Graph for Doveridge Road, Burton-On-Trent

Similar Properties

SOLDSTC Suez Street, Warrington

Suez Street, Warrington, WA1

Sold Subject to Contract £80,000

Hagley Road, Birmingham, B16 8HT

Hagley Road, Birmingham, B16 8HT, B16

For Sale £85,000

SOLDSTC Slater Street, Warrington

Slater Street, Warrington, WA4

Sold Subject to Contract £135,000

SOLDSTC Knightsbridge Court, Palmyra Square North, Warrington

Knightsbridge Court, Palmyra Square North, Warrington, WA1

Sold Subject to Contract £147,000

Get an instant online valuation

Find out how much your property is worth