Rodney Street, Liverpool, L1

For Sale £780,000 Flying Freehold

4 1 3
Elegant Living with Exciting Potential in Liverpool’s Georgian Quarter

This Grade II listed Georgian townhouse, built circa 1780, offers both charm and opportunity on prestigious Rodney Street. Retaining original features—including a striking cantilevered spiral staircase, mahogany doors, and marble fireplaces—the property is ready to be enjoyed as a family home while offering scope for improvement and expansion.

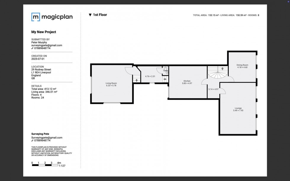
Set across three floors plus basement, the accommodation includes a magnificent first-floor drawing room and dining room spanning the full width of the house, a spacious kitchen/breakfast room, utility, and a versatile family/games room overlooking the garden. The second floor provides three generous bedrooms and a modern bathroom.

To the rear, a private walled garden leads to a substantial three-car garage with storage. The extensive basement, originally a self-contained apartment, also offers exciting possibilities. Together, these spaces provide development potential—whether to update electrical systems, extend living accommodation into the basement, or create a new dwelling above the garage (illustrative drawings attached).

This is an outstanding opportunity for those seeking a lifestyle home with scope to add value in one of Liverpool’s most historic and sought-after addresses. A detailed Property Report is attached with further information on layout and development opportunities.
  • Grade II listed Georgian townhouse (c.1780)
  • Flying Freehold
  • Large family/games room with potential for separate apartment
  • Cantilevered spiral staircase with mahogany handrail
  • Spacious kitchen/breakfast room plus utility
  • Main bathroom with cast iron bath & walk-in shower
  • 2 separate W/C's in addition to the main family bathroom
  • Private garden with direct access to rear
  • Substantial 3-car garage with scope for apartment conversion
  • Extensive basement with options for extension or leisure use
Floorplan for Rodney Street, Liverpool Floorplan for Rodney Street, Liverpool Floorplan for Rodney Street, Liverpool Floorplan for Rodney Street, Liverpool

Similar Properties

SOLDSTC Suez Street, Warrington

Suez Street, Warrington, WA1

Sold Subject to Contract £80,000

Hagley Road, Birmingham, B16 8HT

Hagley Road, Birmingham, B16 8HT, B16

For Sale £85,000

SOLDSTC Slater Street, Warrington

Slater Street, Warrington, WA4

Sold Subject to Contract £135,000

SOLDSTC Knightsbridge Court, Palmyra Square North, Warrington

Knightsbridge Court, Palmyra Square North, Warrington, WA1

Sold Subject to Contract £147,000

Get an instant online valuation

Find out how much your property is worth