Slade Road, Birmingham, B23

For Sale £229,950 Freehold

4 2 1
An excellent opportunity to acquire a versatile property on Slade Road in the popular Erdington area. Previously operated as a five-bedroom HMO, the property benefits from an existing Lawful Development Certificate (LDC). The former HMO licence has now expired, offering flexibility for buyers to reposition the property to suit their needs.

Currently offered as a vacant three-bedroom home, the layout includes one main bathroom and one ensuite bedroom, providing comfortable accommodation for owner-occupiers or those looking to refurbish and re-let.

For investors, the property offers strong potential:

Can be operated as a four-bed HMO in its current configuration.

With improvements to loft access, the property could be reinstated as a five-bed licensed HMO, increasing rental yield and long-term return.

Located close to local amenities, transport links, and major routes into Birmingham City Centre, this property represents an appealing purchase for landlords, developers, or buyers seeking a spacious home with scope to add value.

Room 1

Room 2

Room 3

Room 4

Room 5

Front

Bathroom

Kitchen

Exterior

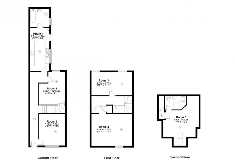
Floorplan for Slade Road, Birmingham

Similar Properties

SOLDSTC Suez Street, Warrington

Suez Street, Warrington, WA1

Sold Subject to Contract £80,000

Hagley Road, Birmingham, B16 8HT

Hagley Road, Birmingham, B16 8HT, B16

For Sale £85,000

SOLDSTC Slater Street, Warrington

Slater Street, Warrington, WA4

Sold Subject to Contract £135,000

Knightsbridge Court, Palmyra Square North, Warrington

Knightsbridge Court, Palmyra Square North, Warrington, WA1

For Sale £139,000

Get an instant online valuation

Find out how much your property is worth