Bee Road, Peacehaven, BN10

For Sale £450,000 Freehold

4 3 2
This impressive home is significant in size and would make a most comfortable family home. Located centrally, you will find a convenience store close by, alongside local schools and road links to Brighton and beyond.

The central from door welcomes you into a magnificent 31' entrance hall, from here all principle rooms can be accessed. Positioned to the rear is a spacious living room with patio doors that overlook the rear garden. Close by is the large kitchen/dining room which offers an excellent range of units, several work surfaces and appliance space too. Furthermore, there remains plenty of space for a dining table and chairs. Completing the ground floor are two double bedrooms which are accompanied by a modern family bathroom/wc.

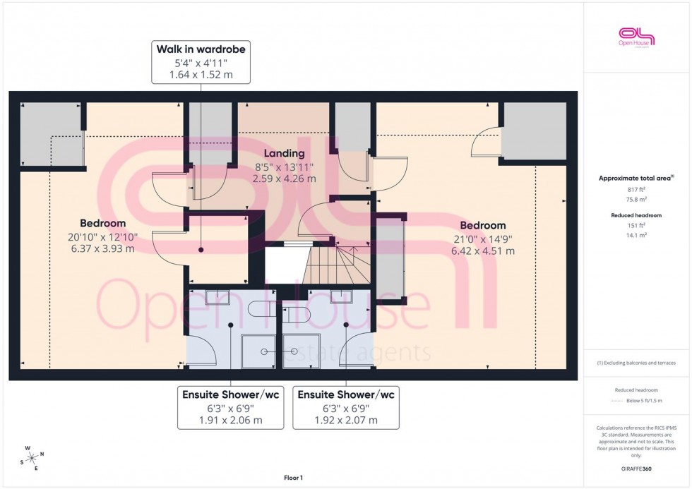
The feeling of space continues to the first floor. Here you will find two further bedrooms, the main bedroom is huge and features its own ensuite shower room/wc and walk in wardrobe. The remaining bedroom is equally as large and offers built in wardrobes and an ensuite shower room/wc.

Outside space is generous with gardens to the side and rear. The rear garden comprises of a level patio with the remainder laid to level lawn. Lastly, parking will be of no concern as there is not only an integral garage but private parking too.

Living Room (5.99m x 4.14m)

Kitchen/Dining Room (5.99m x 3.05m)

Bedroom (3.53m x 2.59m)

Bedroom (5.38m x 2.92m)

Bathroom/wc (3.12m x 1.68m)

Bedroom (6.40m x 4.50m)

Ensuite

Bedroom (6.35m x 3.91m)

Ensuite

Garage (5.38m x 2.92m)

  • Huge Four Bedroom Chalet
  • Spacious Living Room and a Generous Kitchen/Dining Room
  • Modern Family Bathroom on the Ground Floor
  • Two Further Ensuite Shower Rooms to the First Floor
  • Neutral Decoration and Flooring Throughout
  • Quiet Yet Well Connected Location
  • Integral Garage with Private Drive
  • Garden to Two Sides
Floorplan for Bee Road, Peacehaven Floorplan for Bee Road, Peacehaven Floorplan for Bee Road, Peacehaven
EPC Graph for Bee Road, Peacehaven

Similar Properties

SOLDSTC Suez Street, Warrington

Suez Street, Warrington, WA1

Sold Subject to Contract £80,000

Hagley Road, Birmingham, B16 8HT

Hagley Road, Birmingham, B16 8HT, B16

For Sale £85,000

SOLDSTC Slater Street, Warrington

Slater Street, Warrington, WA4

Sold Subject to Contract £135,000

Knightsbridge Court, Palmyra Square North, Warrington

Knightsbridge Court, Palmyra Square North, Warrington, WA1

For Sale £139,000

Get an instant online valuation

Find out how much your property is worth