Briar Close, South Wootton, King's Lynn, PE30

For Sale £385,000 Freehold

4 1 1
Nestled in the charming village of South Wootton, this delightful four-bedroom detached house on Briar Close is ideal for families seeking a spacious and inviting home.
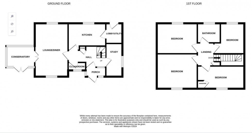
The house boasts a well-designed layout that includes a generous reception room with feature fireplace, perfect for entertaining guests or enjoying family time. A charming conservatory invites natural light and offers a lovely view of the garden, making it an excellent spot for enjoying morning coffee or hosting friends. On a first floor there are Four well-proportioned bedrooms, ensuring that everyone has their own private space and family bathroom. Additionally, there is a downstairs cloakroom,porch, utility and study/guest room which is a significant advantage for busy households.
The exterior of the home is equally appealing, with a garage and a driveway providing convenient off-road parking for several cars.
The surrounding area is known for its desirable location, offering a peaceful village atmosphere while still being within easy reach of local amenities and transport links.

This property presents an excellent opportunity for those looking to settle in a welcoming community, making it a must-see for prospective buyers. With its spacious interiors and attractive features, this detached house is ready to become your new family home.

Porch

Hallway

Cloakroom

Lounge/Diner (6.68m x 3.33m max)

Conservatory (3.81m x 3.48m)

Kitchen (3.61m x 2.69m)

Study (4.01m x 1.50m)

Lobby/Utility (2.69m x 1.73m)

Landing

Bedroom 1 (3.71m x 3.40m)

Bedroom 2 (3.35m x 2.92m)

Bedroom 3 (3.63m x 2.06m)

Bedroom 4 (2.77m x 1.75m)

Bathroom

Summer house/ bar

  • FOUR BEDROOM FAMILY HOME
  • SOUGHT AFTER LOCATION
  • LOUNGE/DINER
  • FIREPLACE & GAS CENTRAL HEATING
  • CONSERVATORY
  • STUDY / GUEST ROOM
  • LOBBY/UTILITY
  • BATHROOM & CLOAKROOM
  • GARAGE & DRIVEWAY
  • SUMMER HOUSE/BAR
Floorplan for Briar Close, South Wootton, King's Lynn
EPC Graph for Briar Close, South Wootton, King's Lynn

Similar Properties

SOLDSTC Suez Street, Warrington

Suez Street, Warrington, WA1

Sold Subject to Contract £80,000

Hagley Road, Birmingham, B16 8HT

Hagley Road, Birmingham, B16 8HT, B16

For Sale £85,000

SOLDSTC Slater Street, Warrington

Slater Street, Warrington, WA4

Sold Subject to Contract £135,000

Knightsbridge Court, Palmyra Square North, Warrington

Knightsbridge Court, Palmyra Square North, Warrington, WA1

For Sale £139,000

Get an instant online valuation

Find out how much your property is worth