Keymer Avenue, Peacehaven, BN10

For Sale £325,000 Freehold

3 1 1
This charming house on Keymer Avenue is a wonderful opportunity for anyone looking to embrace the coastal lifestyle in Peacehaven as it boasts both stunning views and modern amenities too.

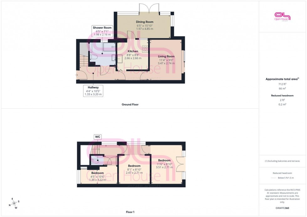
As you enter, you are welcomed into a bright and airy entrance hall, here you will find access to all principle rooms and stairs which rise to the first floor The living room boasts south-facing patio doors, allowing natural light to flood the space while providing breathtaking views of the sea. The modern refitted kitchen is a chef's delight, featuring contemporary fittings and ample storage, making it perfect for meal preparation.

Close by is the dining area, which also features sea views and is perfect for entertaining guests or enjoying family meals. Concluding the ground floor is the modern shower room/wc.

The first floor consists of three bedrooms, two doubles and a single. The main bedroom is a true highlight, offering beautiful sea views that can be enjoyed from the comfort of your bed. Completing this floor is a handy wc.

Finally, outside you will find the the south-facing side garden which is a tranquil space to relax and soak up the sun, all while being treated to some lovely sea views.

Living Room (3.45m x 2.74m)

Dining Area (4.83m x 1.96m)

Kitchen (2.64m x 2.64m)

Shower Room (2.16m x 1.96m)

Bedroom (3.51m x 2.69m)

Bedroom/Study (2.69m x 2.46m)

Bedroom (3.20m x 1.35m)

  • End of Terrace with Seaviews
  • South Facing Living Room with Sea View
  • Dining Area with Sea View
  • Modern Refitted Kitchen
  • Spacious Shower Room
  • Three Bedrooms
  • Main Bedroom with Sea Views
  • South Garden with Sea View
Floorplan for Keymer Avenue, Peacehaven Floorplan for Keymer Avenue, Peacehaven Floorplan for Keymer Avenue, Peacehaven
EPC Graph for Keymer Avenue, Peacehaven

Similar Properties

SOLDSTC Suez Street, Warrington

Suez Street, Warrington, WA1

Sold Subject to Contract £80,000

Hagley Road, Birmingham, B16 8HT

Hagley Road, Birmingham, B16 8HT, B16

For Sale £85,000

SOLDSTC Slater Street, Warrington

Slater Street, Warrington, WA4

Sold Subject to Contract £135,000

Knightsbridge Court, Palmyra Square North, Warrington

Knightsbridge Court, Palmyra Square North, Warrington, WA1

For Sale £139,000

Get an instant online valuation

Find out how much your property is worth