Woodpecker Way, Cannock, WS11

For Sale £425,000 Freehold

4 2 3
Beautiful Four Bedroom Detached Family Home With Detached Double Garage for Sale on Woodpecker Way, Cannock

Beautifully presented four-bedroom detached family home on Woodpecker Way, offering flexible reception space, stylish living room with log burner, dining room with roof lantern, playroom/home office, en suite, landscaped rear garden, ample parking and detached double garage.

Located on the ever-popular Woodpecker Way in Cannock, this beautifully presented four-bedroom detached family home offers an impressive blend of space, style and practicality, with flexible accommodation extending to approximately 1,479 sq ft including the detached garage.

The ground floor has been thoughtfully designed for modern family living, with three separate reception areas providing excellent versatility. There is a stylish main living room with a feature log burner, a further sitting room, a dedicated dining room with roof lantern and garden access, plus a separate playroom or home office, ideal for those needing space to work from home or a children’s area away from the main living space.

The kitchen is well fitted with a range of units and enjoys a practical layout, supported by a separate laundry room and ground-floor WC. Upstairs, the property offers four bedrooms, including a well-presented principal bedroom with en suite shower room, along with a family bathroom serving the remaining bedrooms.

Externally, the home continues to impress. To the front, there is a generous driveway providing ample off-road parking, while to the rear is a superb landscaped garden designed for low-maintenance enjoyment, with patio seating areas, artificial lawn and a smart detached garage.

This is a home that has clearly been cared for and improved, offering the space, finish and flexibility many family buyers are looking for in a desirable Cannock location.

Local Area Information

Woodpecker Way is well placed within Cannock, a popular Staffordshire town offering a strong balance of everyday convenience, commuter access and nearby green space. Cannock sits between Stafford and Birmingham, with the wider district including Cannock, Hednesford and Rugeley, making it a practical base for buyers needing access across Staffordshire and the West Midlands.

For day-to-day amenities, Cannock offers a good range of shops, supermarkets, cafés, restaurants and local services, while the McArthurGlen Designer Outlet West Midlands is one of the area’s standout attractions. The outlet is located just off Junction 11 of the M6 and includes more than 65 brands, along with places to eat and drink, free parking and EV charging.

The area is also well suited to commuters. Cannock railway station provides local rail access, with National Rail listing station facilities including customer information screens, help points and parking, while the town is also well positioned for road links towards the M6, A5 and wider West Midlands network.

For outdoor space, Cannock Chase is a major lifestyle advantage. Recognised as one of Staffordshire’s finest landscapes, it is known for walking, cycling, horse riding, scenery, wildlife and historic interest. Cannock Chase Forest, managed by Forestry England, offers visitor facilities and is a popular destination for family days out, woodland walks, cycling and outdoor activities.

Families are also well served by a choice of schools across Cannock and the surrounding area, with buyers able to check individual catchments and admissions directly with Staffordshire County Council. Nearby schooling options commonly associated with the area include Cannock Chase High School, St Mary’s Catholic Primary School, Sherbrook Primary School and Chase Grammar School, though buyers should always make their own enquiries regarding availability and catchment.

Anti-Money Laundering & ID Verification

Once an offer is accepted on a property marketed by Open House Estate Agents Staffordshire, we are legally required to carry out identity verification and anti-money laundering checks on all purchasers. Ongoing monitoring is also conducted throughout the transaction until completion.

To complete these checks, we use Landmark’s secure verification platform. This process confirms your identity and source of funds in line with current regulations. It is important to note that this is not a credit check and will have no impact on your credit rating.

The cost of the verification is £30.00 including VAT per buyer. This fee is payable in advance once an offer has been agreed and before a Memorandum of Sale is issued. The charge is non-refundable.

By proceeding with your purchase, you agree to these checks being carried out as required by law.

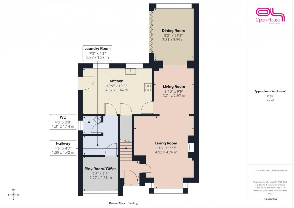
Hallway (1.39 x 1.42 m)

The hallway welcomes you with its crisp white walls and bright ambience, enhanced by subtle panel detailing. This space offers a neat introduction to the home, with easy access to the main living areas and stairs leading upstairs.

Living Room (4.12 x 4.76 m)

A beautifully presented lounge finished in a stylish, contemporary design, with a large front-facing bay window bringing in excellent natural light. The room features attractive herringbone-style flooring, inset ceiling spotlights and a striking media wall with feature log burner, creating a warm and inviting focal point. Open access through to the adjoining dining area gives the space a lovely flow, making it ideal for both relaxed family living and entertaining.

Dining Room (2.81 x 3.59 m)

A stunning dining room forming part of the extended living space, finished in a bright contemporary style with herringbone-style flooring, inset ceiling spotlights and an impressive roof lantern creating a real sense of light and space. Full-height bi-fold doors open directly onto the rear patio and garden, making this a superb room for entertaining, family meals and summer gatherings.

Kitchen (4.82 x 3.14 m)

The kitchen is spacious and practical with a layout designed for ease of use. It features light wooden cabinetry paired with dark work surfaces and tiled flooring, providing an attractive yet easy-to-clean environment. Double windows above the sink overlook the garden, filling the room with natural light. Ample workspace and integrated appliances, including a double-door fridge freezer and a range cooker with extractor hood, make this a functional and welcoming cooking space.

Play Room/Office (2.27 x 2.31 m)

The playroom or home office offers a compact yet flexible space with a window looking out to the front, ideal for a quiet working area or children's play. The room is neutrally decorated with a soft carpet and white walls, making it easy to adapt to your needs.

WC (1.31 x 1.14 m)

The ground floor cloakroom is neatly presented with tiled floors and white sanitary ware. It is conveniently located near the hallway and kitchen, offering a practical WC space with a compact layout.

Bedroom 1 (3.36 x 3.90 m)

Bedroom 1 is a generous principal bedroom featuring soft carpeting and pale walls with subtle panelling for a classic look. A ceiling fan adds comfort, while the sash-style window allows plenty of natural light to brighten the space. This room provides a peaceful retreat with ample space for bedroom furniture.

Ensuite (1.98 x 1.46 m)

The en-suite bathroom to the principal bedroom offers a contemporary finish with a walk-in shower, wall-mounted sink, and toilet. The room is finished in crisp white tones with a heated towel rail and a window to the outside, providing a practical and stylish addition to the main bedroom.

Bedroom 2 (2.48 x 3.28 m)

Bedroom 2 is comfortably sized with light neutral décor and a large window that lets in plenty of daylight. The room is carpeted and simply styled, making it adaptable for use as a guest bedroom or child's room.

Bathroom (1.97 x 1.61 m)

The main bathroom is bright and modern, fitted with a white suite including a bathtub, sink with vanity unit, and a toilet. Neutral tiling extends halfway up the walls, complementing the light décor and creating a fresh, clean space.

Bedroom 3 (2.51 x 2.50 m)

Bedroom 3 is a smaller bedroom with neutral décor and a window overlooking the garden. It is carpeted and offers a cosy space for a child, guest, or home office use.

Bedroom 4 (3.02 x 1.95 m)

Bedroom 4 is a compact single bedroom with clean, light décor. A window brings in natural light, and the room is carpeted for comfort, ideal for a child or as a study.

Landing (2.90 x 0.90 m)

The landing upstairs is a practical space with access to all bedrooms and bathrooms. It features a window and neutral walls, keeping the area bright and welcoming.

Rear Garden

The rear garden is a beautifully maintained outdoor space with a paved patio area leading to an artificial lawn, bordered by neat planting beds and fencing for privacy. The garden provides a great space for outdoor dining, relaxing, or play, and the patio seating area has plenty of room for furniture. Its sunny aspect and secure boundaries make it ideal for families or entertaining guests.

Garage (5.18 x 4.35 m)

The garage is a detached building with ample space for one car, measuring 5.18 by 4.35 metres (17'0" x 14'3"). It features a roller door to the front with a side door for pedestrian access, all finished in brick to match the property with a pitched roof.

  • Beautifully presented detached family home
  • Four bedrooms
  • Principal bedroom with en suite shower room
  • Three versatile reception areas
  • Stylish living room with feature log burner
  • Dining room with roof lantern and garden access
  • Separate playroom or home office
  • Ground-floor WC and laundry room
  • Landscaped low-maintenance rear garden
  • Generous driveway parking and detached double garage
Floorplan for Woodpecker Way, Cannock Floorplan for Woodpecker Way, Cannock Floorplan for Woodpecker Way, Cannock Floorplan for Woodpecker Way, Cannock Floorplan for Woodpecker Way, Cannock
EPC Graph for Woodpecker Way, Cannock

Similar Properties

SOLDSTC Suez Street, Warrington

Suez Street, Warrington, WA1

Sold Subject to Contract £80,000

Hagley Road, Birmingham, B16 8HT

Hagley Road, Birmingham, B16 8HT, B16

For Sale £85,000

SOLDSTC Slater Street, Warrington

Slater Street, Warrington, WA4

Sold Subject to Contract £135,000

SOLDSTC Knightsbridge Court, Palmyra Square North, Warrington

Knightsbridge Court, Palmyra Square North, Warrington, WA1

Sold Subject to Contract £147,000

Get an instant online valuation

Find out how much your property is worth